Kolumna

ADAPTACIJA Stan od 65 m2 dobio je novu spavaću sobu

Foto: Ivan Frleta
adaptacija
Foto: Ivan Frleta
adaptacija
26.11.2014.
u 10:45
Ovlašteni arhitekt Ivan Frleta svakog tjedna donosi vam jedan od svojih projekata. Želite li da Ivan adaptira i vaš stan, javite nam se e-mailom na domivrt@vecernji.net!
Pogledaj originalni članak

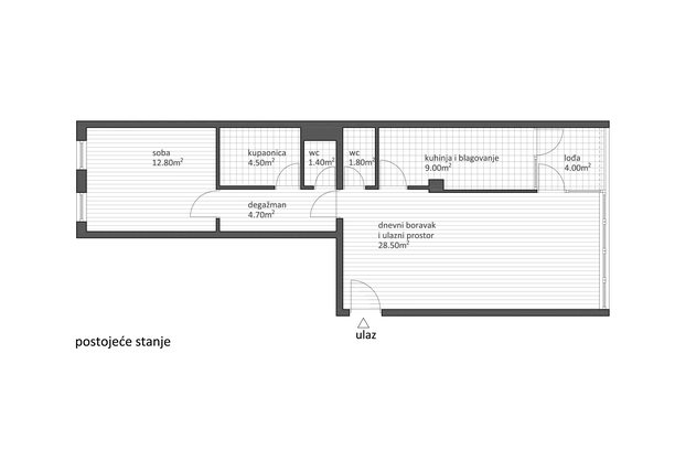
Dvosoban stan površine 65,00 m2 sastoji se od ulaznog prostora, dnevnog boravka, blagovanja, kuhinje, ostave, degažmana, kupaonice, wc-a spavaće sobe i lođe. Četveročlana obitelj stanuje u njemu i potrebna im je još jedna spavaća soba.

Spavaći trakt nije dovoljno prostran za bilo kakve intervencije stoga je jedino moguće rješenje reorganizacija prostora dnevnog boravka, blagovanja i kuhinje. Postojeći raspored i veličina prostorija je optimalna što znači da će se ti odnosi ponešto narušiti dodavanjem još jedne sobe.

Foto: Ivan Frleta

Novu spavaću sobu sam smjestio u prostor koji je do sada zauzimalo blagovanje. To je jedini način da soba bude prirodno osvjetljena i ventilirana, a da se pritom ne uskrati ista kvliteta dnevnom boravku i blagovanju. Dnevni boravak je postao uži u odnosu na postojeće stanje, a blagovanje sam premjestio uz ulazni prostor. Kuhinja najviše trpi u ovakvom tlocrtnom rasporedu no ona ima mogućnost ventilacije putem vertikale pa smatram da je to prihvatljivo rješenje. Osvjetliti se može donekle izvedbom dijela zida između kuhinje i spavaće sobe od translucentnog materijala, a postoje i suvremeni sistemi kanala koji provode dnevno svjetlo i omogućavaju ventilaciju preko pročelja zgrade.

Foto: Ivan Frleta

Postoji mogućnost da se soba još malo poveća i dobije prostor za garderobni ormar što za posljedicu nosi skraćenje kuhinje za još 60 centimetara. Najveći nedostatak ovog rješenja je ukidanje ostave te slabo definiran ulazni prostor.

Želite li da Ivan adaptira i vaš stan ili imate li bilo kakvo pitanje za njega, javite nam se e-mailom na domivrt@vecernji.net! Trebate nam poslati postojeći tlocrt s barem jednom dimenzijom, zatim, koji su korisnici stana, koje prostorije žele imati te imate li neku specifičnu želju. Ne bi bilo loše da pošaljete fotografije.

Napomena: Potrebno je sve mjere kontrolirati u naravi. Ne odgovaramo za eventualna odstupanja u odnosu na stvarno stanje. Za točne nacrte potrebno je izvršiti snimak postojećeg stanja. Ukoliko ste zadovoljni s rješenjem možete stupiti u kontakt s arhitektom radi ostvarivanja suradnje na projektu.

Ključne riječi
Pogledajte na vecernji.hr

Još nema komentara

Nema komentara. Prijavite se i budite prvi koji će dati svoje mišljenje.